Energetisch auf dem neuesten Stand, barrierefrei und top modern kommt diese Penthousewohnung daher, die Sie bequem über den Personenaufzug erreichen können.
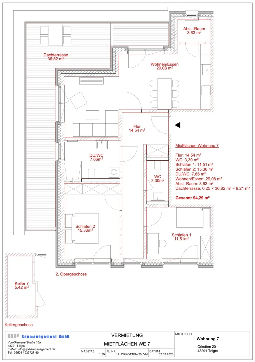
Sie ist perfekt aufgeteilt und verfügt über eine Komfortausstattung. Fußbodenheizung, elektrische Rollläden, bodengleiche Dusche, Gäste-WC und ein Abstellraum innerhalb der Wohnung sind praktisch und angenehm zugleich. Das Wohnzimmer ist in L-Form angelegt und entspricht mit der angegliederten, offenen Küche dem heutigen Zeitgeist. Zwei Schlafzimmer, ein Badezimmer sowie ein komfortabler Flur runden das Angebot ab.
Die Dachterrasse ist definitiv eines der Highlights dieser Wohnung.
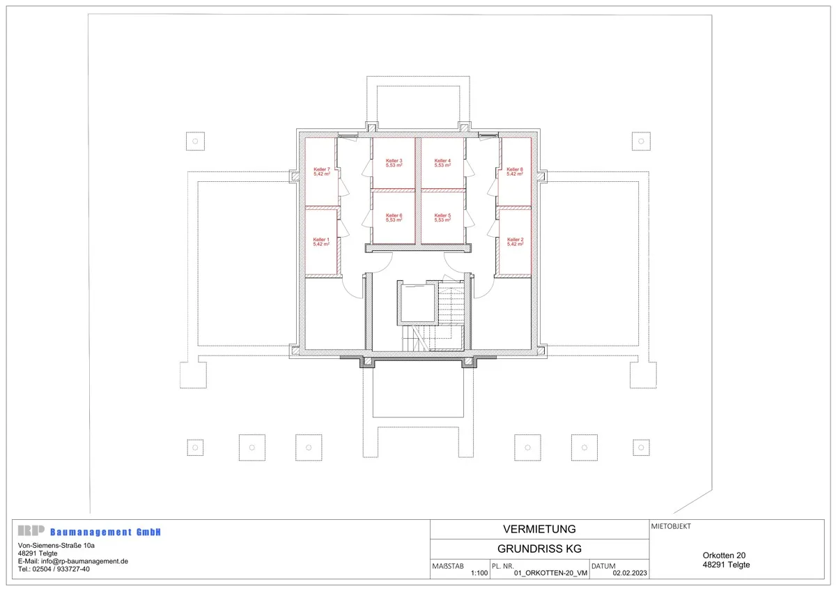
Platz zum Abstellen für die Dinge, die nicht jeden Tag benötigt werden, ist im Keller vorhanden.
Ein PKW-Aussenstellplatz ist direkt der Wohnung zugeordnet.
Die Wohnung ist perfekt geeignet für Interessenten, denen ihr Eigenheim zu groß geworden ist weil z.B. die Kinder aus dem Haus sind oder der Garten mittlerweile einfach zu viel Arbeit macht.
Vorraussetzung für die Anmietung dieser Wohnung ist ein dem Mietpreis entsprechendes regelmäßiges Arbeits- bzw. Renteneinkommen.
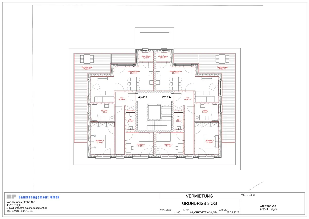
– Penthouse
– Wohnfläche ca. 94,29 Quadratmeter
– Baujahr 2023
– 3 Zimmer, Küche, Bad, Gäste-WC, Abstellraum
– Dachterrasse
– Kellerraum
– Personenaufzug
– PKW-Stellplatz/Carport (45,- € Miete/Monat)
Das Objekt wird vermittelt ohne Gewähr für Größe, Güte und Beschaffenheit. Alle Angaben beruhen auf Informationen des Immobilieneigentümers. Für die Richtigkeit der Angaben können wir trotz sorgfältiger Prüfung keine Haftung übernehmen.
In zentraler Wohnlage von Telgte befindet sich diese Wohnung in einem Mehrfamilienhaus mit insgesamt 8 Wohneinheiten. Sämtliche Einkaufsmöglichkeiten sind fußläufig zu erreichen. Telgte verfügt über eine gute Infrastruktur mit sämtlichen Schulformen und Kindergärten. Die gemütliche Altstadt lädt zum Shoppen und Bummeln ein. Aufgrund des grünen Umlandes und dem Naherholungsgebiet Klatenberge kommen auch die Naturliebhaber in Telgte auf Ihre Kosten. Pendler, die Ihren Arbeitsplatz in der Westfalenmetropole Münster haben, freuen sich über die günstige Bahnverbindung, die für einen Transport bis in die Innenstadt innerhalb von 12 Minuten sorgt.
Die Kaltmiete für dieses Objekt beträgt 1.200,- € + 45,- € PKW-Stellplatz + Nebenkosten 200,- € inkl. Heizkosten.
Widerrufsrecht
Sie haben das Recht, binnen vierzehn Tagen ohne Angabe von Gründen diesen Vertrag zu widerrufen.
Die Widerrufsfrist beträgt vierzehn Tage ab dem Tag des Vertragsabschlusses.
Um Ihr Widerrufsrecht auszuüben, müssen Sie uns (Harbring Immobilien, Emsstraße 5, 48291 Telgte, Telefon 02504-9323270, Telefax 02504-9323272, info@harbring-immobilien.de) mittels einer eindeutigen Erklärung (z. B. ein mit der Post versandter Brief, Telefax oder E-Mail) über Ihren Entschluss, diesen Vertrag zu widerrufen, informieren.
Zur Wahrung der Widerrufsfrist reicht es aus, dass Sie die Mitteilung über die Ausübung des Widerrufsrechts vor Ablauf der Widerrufsfrist absenden.
Folgen des Widerrufs
Wenn Sie diesen Vertrag widerrufen, haben wir Ihnen alle Zahlungen, die wir von Ihnen erhalten haben, unverzüglich und spätestens binnen vierzehn Tagen ab dem Tag zurückzuzahlen, an dem die Mitteilung über Ihren Widerruf dieses Vertrags bei uns eingegangen ist. Für diese Rückzahlung verwenden wir dasselbe Zahlungsmittel, das Sie bei der ursprünglichen Transaktion eingesetzt haben, es sei denn, mit Ihnen wurde ausdrücklich etwas anderes vereinbart; in keinem Fall werden Ihnen wegen dieser Rückzahlung Entgelte berechnet.
Haben Sie verlangt, dass die Dienstleistungen während der Widerrufsfrist beginnen soll, so haben Sie uns einen angemessenen Betrag zu zahlen, der dem Anteil der bis zu dem Zeitpunkt, zu dem Sie uns von der Ausübung des Widerrufsrechts hinsichtlich dieses Vertrags unterrichten, bereits erbrachten Dienstleistungen im Vergleich zum Gesamtumfang der im Vertrag vorgesehenen Dienstleistungen entspricht.
Verbraucherinformationen: Online-Streitbeilegung gemäß Art. 14 Abs. 1 ODR-VO: Die Europäische Kommission stellt eine Plattform zur Online-Streitbeilegung (OS) bereit, die Sie hier finden: ec.europa.eu/consumers/odr
Mit dem Laden der Karte akzeptieren Sie die Datenschutzerklärung von Google.
Mehr erfahren
Wir sind Ihr Ansprechpartner rund um das Thema „Wohnen und Bauen“.
Für Ihre Immobilien erzielen wir einen guten Preis – zeitnah und marktgerecht.